Skip links

Multi-Family Projects

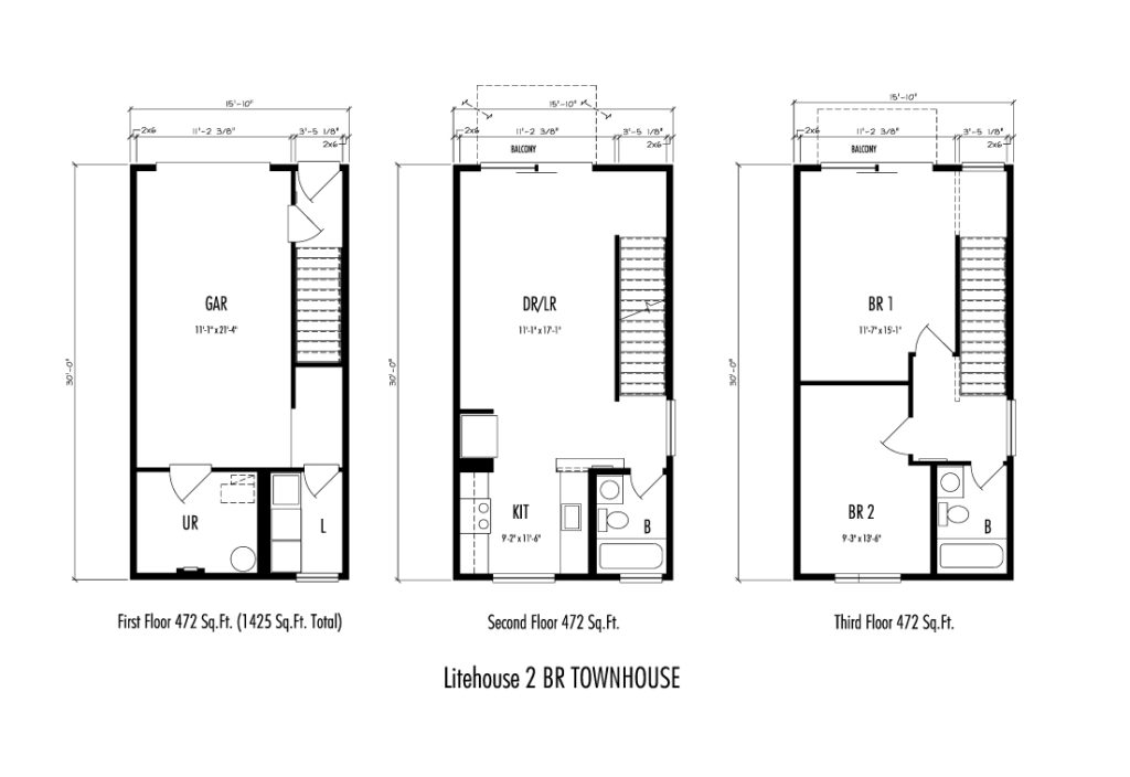
Litehouse Townhomes

Dayton, Ohio

Unibilt Homes partnered with a Dayton, Ohio development group and their architects to design and build Leed Certified two bedroom townhomes. The Litehouse townhomes reflect our ability to customize to meet individual builder/developer specifications. Unibilt was tasked with meeting the mission to create an affordable, energy-efficient, sustainable approach to home building…and we met the task! The townhomes feature three stories comprised of 2,100 SQ. FT. with open spacious floor plans making the most of flow and design. Low VOC materials, energy efficient lighting and appliances were all specified to meet demanding LEED Certification standards. State of the art modular construction reduced on site construction times while reducing the environmental impact to the community.

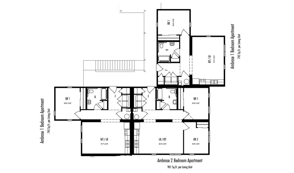
Ambrose Apartments

Cincinnati, Ohio

The Ambrose Apartment project is a LEED Certified Silver multi-family complex which replaced sub-standard housing in the Evanston Neighborhood of Cincinnati, Ohio. The project consists of eight, three-bedroom townhouses and 18, one and two-bedroom flats for a total of 24,000 SQ. FT. of living space. Each apartment features teak hardwood flooring, ceramic tile kitchens, and baths, as well as factory-installed fire suppression systems. An on-site elevator and wood stair/deck assemblies provides access to each of the living units in the three-story complex. Unibilt worked closely with the builder and builder’s architect to provide an aesthetically pleasing solution for affordable housing in inner-city Cincinnati. The entire project was completed in less than six months from date of first modules being set, ahead of schedule and on budget.

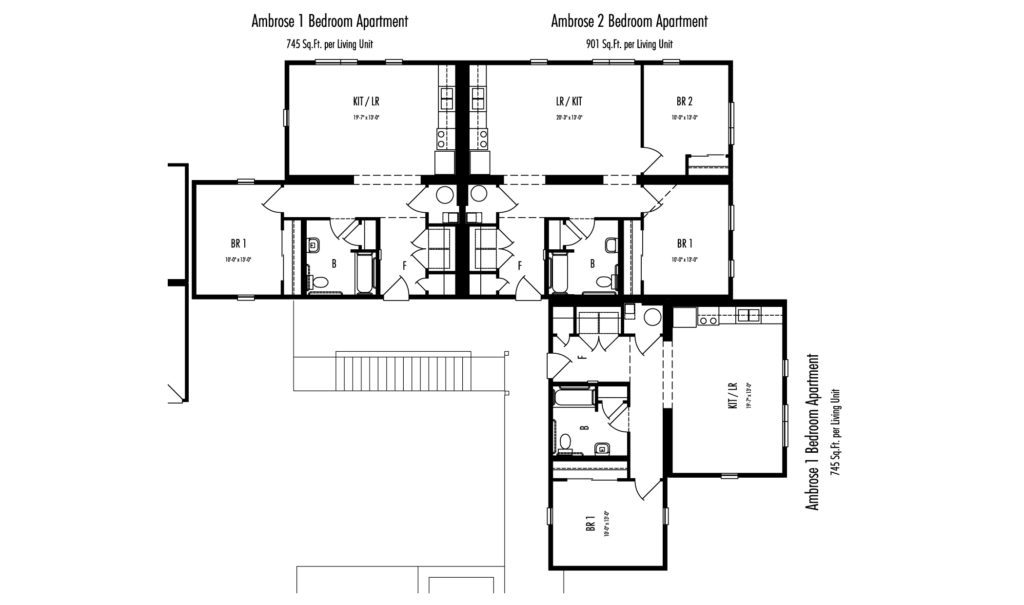
Ambrose Apartments

Cincinnati, Ohio

The Ambrose Apartment project is a LEED Certified Silver multi-family complex which replaced sub-standard housing in the Evanston Neighborhood of Cincinnati, Ohio. The project consists of 8, three-bedroom townhouses and 18, one and two-bedroom flats for a total of 24,000 SQ. FT. of living space. Each apartment features teak hardwood flooring, ceramic tile kitchens, and baths, as well as factory-installed fire suppression systems. An on-site elevator and wood stair/deck assemblies provides access to each of the living units in the three-story complex. Unibilt worked closely with the builder and builder’s architect to provide an aesthetically pleasing solution for affordable housing in inner-city Cincinnati. The entire project was completed in less than six months from date of first modules being set, ahead of schedule and on budget.

Take a tour of our facility

If you are interested in working with us and would like to schedule a tour of our facility to learn about the benefits of modular construction, please complete the form below to contact us.

Take a tour of our facility

If you are interested in working with us and would like to schedule a tour of our facility to learn about the benefits of modular construction, please complete the form below to contact us.

Join our team
of builders

We are always looking for new builders to partner with. Get in touch with our team and let’s get started!

builders

Builders

Learn more

Residential

Learn more

Commercial

Learn more